English
Español
Português
русский
Français
日本語
Deutsch
tiếng Việt
Italiano
Nederlands
ภาษาไทย
Polski
한국어
Svenska
magyar
Malay
বাংলা ভাষার
Dansk
Suomi
हिन्दी
Pilipino
Türkçe
Gaeilge
العربية
Indonesia
Norsk
تمل
český
ελληνικά
український
Javanese
فارسی
தமிழ்
తెలుగు
नेपाली
Burmese
български
ລາວ
Latine
Қазақша
Euskal
Azərbaycan
Slovenský jazyk
Македонски
Lietuvos
Eesti Keel
Română
Slovenski
मराठी
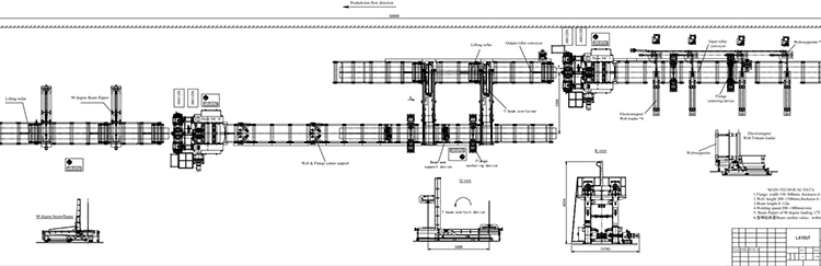
Srpski језик Byjinfeng Weldcut-ek fabrikatutako 1 h emurdutako soldadura-lerroetarako 12 hilabeteko bermea izango da, hau da, altzairuzko egituraren, zubiaren, eraikuntzako erabiltzaileentzako produktibitatea handitzeko eraginkortasun handiko makina.
|
Eredu |
Zhjjjjjjjjjjjjjjjj |
ZJ18 |
Zhj20 |
|
T-Beam Webheight (H) |
200 ~ 1500mm |
200-1800 |
200-2000mm |
|
Web lodiera (D) |
6 ~ 12mm |
6 ~ 19mm |
6 ~ 30mm |
|
Flangewidth (b) |
200 ~ 800mm |
200 ~ 1000mm |
|
|
FlanGeticness (t) |
6 ~ 25mm |
6 ~ 40mm |
|
|
Habeen luzera (l) |
4000 ~ 15000mm |
4000 ~ 15000mm |
4000 ~ 15000mm |
|
Habe materiala |
Q235 |
||
|
Soldadura mota |
Arku urpekatua Zeharkako xerrak soldadura |
||
|
Soldadura-iturria |
Alanbre bakarreko edo alanbre motako mota |
Alanbre bakarra |
Alanbre bakarra |
|
Soldadura irteera abiadura |
200 ~ 1000 mm / min |
||
|
Linterna angelua: |
45 ° Egokitzapen fina |
||
|
Presio hidraulikoa |
≤14 MPA |
||
|
Flux berreskuratzeko sistema |
2ses |
||
|
Fluxuen hopper bolumena |
2 × 50l |
||
|
Sarrerako garraiatzailearen arrabola: |
12000 mm |
||
|
Irteera garraiatzailearen arrabola: |
12000 mm |
||
|
Makina potentzia nagusia |
18,0kw |
||
|
Sistema hidraulikoa: |
Geru |
||
|
Zuzenketa Unitatea |
1 multzo, makinan integratua |
||
|
Hornidura: |
AC / 380 V / 50 Hz / 3ph |
||
|
Zuzenketa gaitasuna |
6-40mm |
||
3-in 1 h hade soldadura lerroak HAM, T-habeen muntaketa, soldadura eta brida deformazioaren funtzio konbinatua da soldadura ondoren. Horrela, HAM eta T Beam Ekoizpena zehaztasunez eta azkar gauzatu daiteke. Abantaila hauek ditu: funtzionamendu sinplea, lan kostu txikiagoa eta estalki txikia.
Lerro honek aukerako bi soldadura prozesu ditu, egiturazko altzairuzko plakaren lodieraren arabera aukeratzeko.
A aukera: Gordina tasa Bakarreko alanbrearen soldadura arku bakarreko alanbre bakarreko arku bakarreko soldadura baino% 40 handiagoa da, Sot bereziki egokia da lodiera 20mm baino txikiagoa den altzairuzko lodiera.
B aukera: arku bakarreko alanbre soldadura bakarra. Plakaren lodiera soldadura sorta handiagoa lortzeko egokia da.
Zhj3-in 1 h hade-en soldadura-lerroak sarrerako arrabola, soldadura nagusia eta zuzenketa-geltokiak osatzen dute. Flux berreskuratzeko unitateak daude. Instalatu da fluxu-buruarekin, zuritzeko eta webgune estandarra ere Soldadura-iturriak, geltoki hidraulikoa eta kontrol-kaxa barne.
1. Standizzhj3-in 1 h habe soldatzeko ildoak

2. 1. aukera:
Bezeroen eskaera desberdinen arabera, TheZhj3-in 1 h habe soldadura-lerroetarako konfigurazioa ere eskaintzen dugu:
3-in-1 h eskumuturreko soldadura-lerro estandarrean oinarrituta, hau da, web-kargatzaile multzo bat, hau da, 4 pieza kargatzeko beso eta 4pcs web-laguntzarako.

3. 2. aukera:
Bezeroen eskaera desberdinen arabera, TheZhj3-in 1 h habe soldadura-lerroetarako konfigurazioa ere eskaintzen dugu:
3-in-1 h eskumuturreko soldadura-lerro estandarrean oinarrituta, hau da, web-kargatzaile multzo bat, hau da, 4 pieza kargatzeko beso eta 4pcs web-laguntzarako.
Goian oinarrituta, 90 graduko izpi-flipper multzo bat gehi diezaiokegu irteerako arrabolaren taulan soldatutako izpia posizio horizontalean iraultzeko.

3. 3. aukera:
Baliteke bezero batzuek soldadura-lerroa handitu behar izatea. Soldadura-estazio bat behar dute. Lehen soldadurako estazio bat da. 1. Flograntza eta webgunea soldatzeko, T Beam osatzeko, Soldadurako T-Beam eta 2. bridak osatzeko 2.a h habe bat osatzeko.
3.1 Beraz, 3-in-1 h hade-soldadura-lerro estandarrean oinarrituta, hau da, web-kargatzailearen multzo bat, hau da, 4 PC-ko karga kargatzeko 4 pieza eta 4pcs webgunearen webgunea.
3.2 T-Beadearen gaineko 1 multzo gehitzeko T-Beam-a 180 gradutan biratzeko eta T-Beam 2. Braganean 2. Soldadura geltokiko sarrerako arrabolaren taulan kokatzeko.
3.3 90 graduko izpi-flipper bat gehitzeko, soldadura-estazioaren irteera-taulan, soldadura-habea posizio horizontalean iraultzeko.
T Beam eta H-habe ekoizpen fluxua
3-in-1 H-Beam soldadura linea integratuak erabiltzaileen fabrikan instalatuta